JSZ型带制动轮蛇形弹簧联轴器
PDF下载
产品描述
JSZ型带制动轮蛇形弹簧联轴器
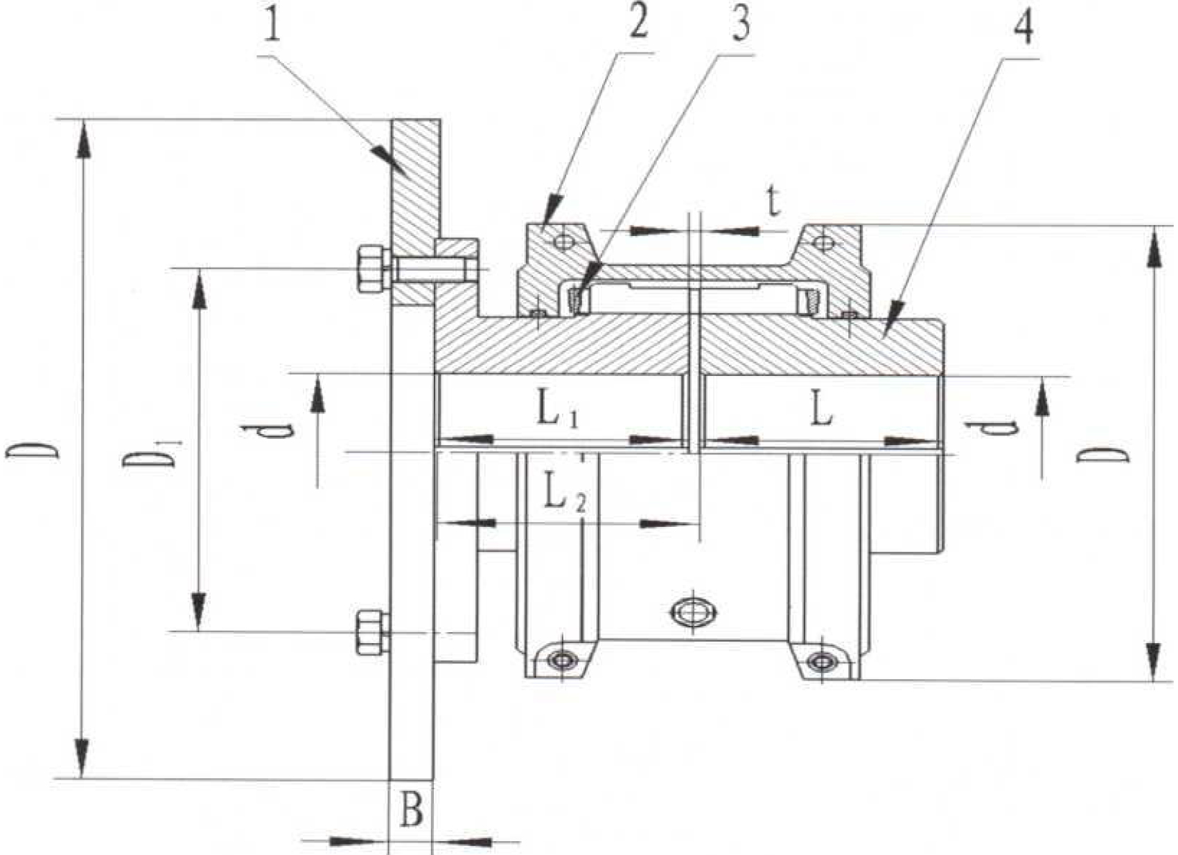
基本参数和主要尺寸(JB/T 8869-2000)
基本参数和主要尺寸(JB/T 8869-2000)
| 型号 | 公称 转矩 Tn N*m |
许用 转速 [n] rpm |
制动轮 | 轴孔直径 | L | L0 | 间隙 t |
质量m (无 孔)kg | 润滑油kg | ||
| 直径 DO |
宽度 B |
di | d2 | ||||||||
| JSZ1 | 125 | 3820 | 160 | 65 | - | 12, 14 | 54 | 111 | 3 | 10. 44 | 0. 085 |
| - | 16, 18, 19 | ||||||||||
| 20, 22, 24 | |||||||||||
| 25, 28 | |||||||||||
| 30, 32, 35, 38 | |||||||||||
| 40, 42, 45, 48, 50 | |||||||||||
| JSZ2 | 250 | 2870 | 200 | 70 | - | 16, 18, 19 | 76 | 155 | 23.61 | 0. 142 | |
| 20, 22, 24 | |||||||||||
| 25, 28 | |||||||||||
| 30, 32, 35, 38 | |||||||||||
| 40, 42, 45, 48, 50, 53, 56 | |||||||||||
| - | 60, 63, 65 | ||||||||||
| JSZ3 | 355 | 2300 | 250 | 90 | 25, 28 | - | 82 | 167 | 28.6 | 0. 17 | |
| 30, 32, 35, 38 | |||||||||||
| 40, 42, 45, 48, 50, 55, 56 | |||||||||||
| 60, 63 | 60, 63, 65, 70, 71 | ||||||||||
| JSZ4 | 710 | 1730 | 315 | 110 | 25, 28 | - | 95 | 195 | 5 | 59.93 | 0. 284 |
| 30, 32, 35, 38 | |||||||||||
| 40, 42, 45, 48, 50, 55, 56 | |||||||||||
| 60, 63, 65, 70, 71, 75 | |||||||||||
| 80, 85 | 80, 85, 90, 95 | ||||||||||
| JSZ5 | 1400 | 1350 | 400 | 140 | 25, 28 30, 32, 35, 38 |
一 | 98 | 201 | 85. 801 | 0. 34 | |
| 40, 42, 45, 48, 50, 55, 56 |
50, 55, 56 | ||||||||||
| 60, 63, 65, 70, 71, 75 | |||||||||||
| 80, 85, 90, 95 | |||||||||||
| 100 | |||||||||||
| JSZ6 | 2800 | 1145 | 500 | 180 | 40, 42, 45, 48, 50, 55, 56 |
- | 124 | 253 | 144. 372 | 0. 681 | |
| 60, 63, 65, 70, 71, 75 | |||||||||||
| 80, 85, 90, 95 | |||||||||||
| 100, 110, 120 | 100, 110, 120, 125 | ||||||||||
JSZ型带制动轮蛇形弹簧联轴器
基本参数和主要尺寸(JB/T 8869-2000)
基本参数和主要尺寸(JB/T 8869-2000)
| 型号 | 公称转 矩 Tn N*m |
许用 转速 [n] rpm |
制动轮 | 轴孔直径 | L | L0 | 间隙t | 质量m (无 孔)kg |
润滑油 kg |
||
| 直径 D0 |
宽度 B |
di | d2 | ||||||||
| JSZ7 | 5600 | 915 | 630 | 225 | 60, 63, 65, 70, 71, 75 |
75 | 130 | 266 | 6 | 255.6 | 1.248 |
| 80, 85, 90, 95 | |||||||||||
| 100, 110, 120, 125 | |||||||||||
| 130, 140 | |||||||||||
| 150, 160 | 150 | ||||||||||
| JSZ8 | 9000 | 820 | 710 | 255 | 75 80, 85, 90, 95 |
一 | 190 | 386 | 495. 326 | 3. 632 | |
| 100, 110, 120, 125 | |||||||||||
| 130, 140, 150 | |||||||||||
| 160, 170, 180 | |||||||||||
| 190 | 190, 200 | ||||||||||
♦注:1.若轴孔型式按GB/T3852与制造厂协商。2.质量是无孔的计算近似值。
JSZ型带制动盘型蛇形弹簧联轴器(JB/T 8869-2000)
![]() |


咨询热线
