GL KC CR型滚子链联轴器
PDF下载
产品描述
![]() |
![]() |
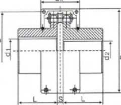
| ♦结构性能 Structure capability •双排滚子链采用GB1243.1-83《传动用短节距精密 滚子链》规定的链条。 •轴孔键槽形式及尺寸符合GB/T3852-1997规定。 •使用罩壳的结构及尺寸,根据需要选定。 •标记符合 GB/T3852-1997。 •结构简单、装拆方便。所转时有空行程,不宜用 于冲击载荷很大的逆向传动。 |
♦标记示例(有罩壳时,型号后加“F" ) Marksample GL3型滚子链联轴器,有罩壳 主动端:J1型孔、A型键槽,dl=25, L=44 从动端:J1型孔、A型键槽,d2=25, L=44 联轴器:GL3FJ 125x44 GB/T6069-2002 G17型滚子链联轴器 主动端:J1型孔、B型键槽,dl=45, L=84 从动端:Y型孔、B型键槽,d2=50, L=84 联轴器:GL7GB/T6069-2002YB50X84 |
GL型滚子链联轴器基本参数和主要尺寸
| 型号 Type | 公称 转妬 Tn N. m |
许用转速 [n] r/pa |
§孔直径di, d | 轴孔长度 | 链条 | 齿数2 | D | bn | S | A | )k max | J? max | 质量kg | 转动惯量 Kg.m2 |
||
| 丫型 | J1型 | 链号 | 节矩P mm |
|||||||||||||
| mm | ||||||||||||||||
| L | LI | |||||||||||||||
| GL1 | 40 | 4500 (1400) |
16, 18, 19 | 42 | 06B | 9.525 | 14 | 51.06 | 5.3 | 4.9 | —- | 70 | 70 | 0.40 | 0.00010 | |
| 20 | 52 | 38 | 4 | |||||||||||||
| GL2 | 63 | 4500 (1250) |
19 | 42 | 一 | 06B | 9. 525 | 16 | 57. 08 | 5.3 | 4.9 | 一 | 75 | 75 | 0. 70 | 0. 00020 |
| 20, 22, 24 | 52 | 38 | 4 | |||||||||||||
| GL3 | 100 | 4500 (WOO) | 20, 22, 24 | 52 | 38 | 06B | 12.7 | 14 | 68.88 | 6.2 | 6,7 | 12 | 85 | 80 | 1.1 | 0.00038 |
| 25 | 62 | 44 | 6 | |||||||||||||
| GL4 | 160 | 4000 (1000) |
24 | 52 | - | 08B | 12.7 | 16 | 76.91 | 7.2 | 6.7 | 6 | 95 | 88 | 1.8 | 0.00086 |
| 25, 28 | 62 | 44 | ||||||||||||||
| 30, 32 | 82 | 60 | 一 | |||||||||||||
| GL5 | 250 | 3150 (800) | 28 | 62 | - | 10A | 15.875 | 16 | 94.46 | 8.9 | 9.2 | 一 | 112 | 100 | 3.2 | 0.00" 5 |
| 10, 32, 35, 31 | 82 | 60 | ||||||||||||||
| 40 | 112 | 84 | ||||||||||||||
| GL6 | 400 | 2500 (630) | 32, 35, 38 | 82 | 60 | 10A | 15. 875 | 20 | 116. 57 | 8.9 | 9,2 | 一 | 140 | 105 | 5,0 | 0.0058 |
| 0, 42, 45, 48 50 |
112 | 84 | ||||||||||||||
| GL7 | 630 | 2500 (630) |
0, 42, 45, 48 50, 55 |
112 | 84 | 12A | 19.05 | 18 | 127. 7» | 11.9 | 10.9 | 150 | 122 | 7.4 | 0.012 | |
| 60 | 142 | 107 | ||||||||||||||
| GL8 | 1000 | 2240 (500) | :5, 48, 50, 5! | 112 | 84 | 16A | 25. 40 | 16 | 154. 3J | 15.0 | 14.3 | 12 | 180 | 135 | 11.1 | 0. 025 |
| 60, 65, 70 | 142 | 107 | 一 | |||||||||||||
G L型滚子链联轴器基本参数和主要尺寸
| GL9 | 1600 | 2000 (400) |
50, 55 | 112 | 84 | 16A | 25. 40 | 20 | 186. 50 | 15.0 | 14.3 | 12 | 215 | 145 | 20.0 | 0. 061 |
| 60, 65, 70, 75 |
142 | 107 | - | |||||||||||||
| 80 | 172 | 132 | ||||||||||||||
| GL10 | 2500 | 1600 (315) | 60, 65, 70, 75 |
142 | 107 | 20A | 31.75 | 18 | 213. 02 | 18.0 | 17.8 | 6 | 245 | 165 | 26. 1 | 0. 079 |
| 80, 85, 90 | 172 | 132 | - | |||||||||||||
| GL11 | 4000 | 1500 (250) | 75 | 142 | 107 | 24A | 38.1 | 16 | 231.49 | 24.0 | 21.5 | 35 | 270 | 195 | 39.2 | 0. 188 |
| 80, 85, 90, 95 |
172 | 132 | 10 | |||||||||||||
| 100 | 212 | 167 | ||||||||||||||
| GL12 | 6300 | 1125 (250) |
85, 90, 95 | 172 | 132 | 28A | 44. 45 | 16 | 270. 08 | 24.0 | 24.9 | 20 | 310 | 205 | 59.4 | 0. 380 |
| 100, 110, 120 | 212 | 167 | ||||||||||||||
| GL13 | 10000 | 1120 (250) |
100, 110, 120, 125 |
212 | 167 | 32A | 50.8 | 18 | 340. 80 | 30 | 28.6 | 14 | 380 | 230 | 86. 5 | 0. 869 |
| 130, 140 | 252 | 202 | - | |||||||||||||
| GL14 | 16000 | 1000 (200) | 120, 125 | 212 | 167 | 32A | 50.8 | 22 | 405. 22 | 30 | 28.6 | 14 | 450 | 250 | 150.8 | 2. 06 |
| 130, 140, 150 | 252 | 202 | 4- | |||||||||||||
| 160 | 302 | 242 | ||||||||||||||
| GL15 | 25000 | 900 (200) |
140, 150 | 252 | 202 | 40A | 63.5 | 20 | 466. 25 | 36 | 35.6 | 18 | 510 | 285 | 234.4 | 4. 37 |
| 160, 170, 180 | 302 | 242 | - | |||||||||||||
| 190 | 352 | 282 |
KC (CR)型滚子链联轴器
| 型号Type | 链条 | 孔径 | 链条尺寸 | 扭矩 (kgf.m2) |
重量 kg |
外壳尺寸. | 扭矩 (kgf.m2) |
重量 kg |
|||||||
| 最小 | 最大 | L | I | S | d | 0 | C | A | B | ||||||
| KC-3012 | 06B-2 | 12 | 16 | 64.8 | 29.8 | 5.2 | 26 | 45 | 10.2 | 0.233 | 0.4 | 69 | 63 | 0.88 | 03 |
| KC-4012 | 14642 | 12 | 22 | 79.4 | 36 | 7.4 | 35 | 62 | 14.4 | 1.020 | 0.8 | 77 | 72 | 1.03 | 0.3 |
| KC-4014 | 14642 | 12 | 28 | 79.4 | 36 | 7.4 | 43 | 69 | 14.4 | 1.924 | 1.1 | 84 | 75 | 1.42 | 0.4 |
| KC-4016 | 14642 | 14 | 32 | 87.4 | 40 | 7.4 | 50 | 77 | 14.4 | 3.285 | 1.4 | 92 | 72 | 2.41 | 0.4 |
| KC-5014 | 50-2x14 | 15 | 35 | 99.7 | 45 | 9.7 | 55 | 86 | 18.1 | 6.01 | 2.2 | 101 | 85 | 3.63 | 0, 5: \ |
| KC-5016 | 50-2x16 | 16 | 40 | 99.7 | 45 | 9.7 | 62 | 93 | 18.1 | 9.72 | 2.7 | 110 | 87 | 4.81 | 0.6 |
| KC-5018 | 50-2x18 | 16 | 45 | 99.7 | 45 | 9.7 | 70 | 106 | 18.1 | 15.42 | 3.8 | 122 | 85 | 6.97 | 0.8 |
| KC-6018 | 60-2x18 | 20 | 56 | 123.5 | 56 | 11.5 | 85 | 127 | 22.8 | 40.21 | 6.2 | 147 | 105 | 16.84 | 1.2 |
| KC-6020 | 60-2x20 | 20 | 60 | 123.5 | 56 | 11.5 | 100 | 139 | 22.8 | 62.87 | 7.8 | 158 | 105 | 21.27 | 1.6 |
| KC-6022 | 60-2x22 | 20 | 71 | 123.5 | 56 | 11.5 | 110 | 151 | 22.8 | 93.45 | 10.4 | 168 | 117 | 28.97 | 1.8 |
| KC-8018 | 80-2x18 | 20 | 80 | 141.2 | 15.2 | 110 | 169 | 29.3 | 142.03 | 12.7 | 190 | 129 | 52.13 | 2.5 | |
| KC-8020 | 80-2x20 | 20 | 90 | 145.2 | 65 | 15.2 | 120 | 185 | 29.3 | 204.90 | 16.0 | 210 | 137 | 82.39 | 2.9 |
| KC-8022 | 80-2x22 | 20 | 100 | 157.2 | 71 | 15.2 | 140 | 202 | 29.3 | 341.17 | 20.2 | 226 | 137 | 104.07 | 3.6 |
| KC-10020 | 100-2x20 | 25 | 110 | 178.8 | 80 | 18.8 | 162 | 233 | 35.8 | 646.29 | 33.0 | 281 | 153 | 233.87 | 4.6 |
| KC-12018 | 120-2x18 | 35 | 125 | 202.7 | 90 | 22.7 | 170 | 256 | 45.4 | 1075.71 | 47.0 | 307 | 181 | 460.74 | 6.2 |
| KC-12022 | 120-2x22 | 35 | 140 | 222.7 | 100 | 22.7 | 210 | 304 | 45.4 | 2454.50 | 72.0 | 357 | 181 | 803.00 | 8.0 |
The inner diameter dimension can supply finished chain coupling according to JIS.GB.BS and ASA standard series.


咨询热线

